Saltar al contenido
Volver a la página principal
  • Estudio
  • Contacto
  • Proyectos
    • vivienda unifamiliar
      • Vivienda en Chamín, Arteixo
      • Vivienda en Pravio, Cambre
      • Vivienda en Rúa Roibeiras, Mugardos
      • Vivienda en Rúa Fornos, Oleiros
      • Vivienda en As Patiñas, Oleiros
      • Vivienda en Curtis
      • Vivienda en Rúa Aba, Oleiros
      • Vivienda en Bustelo, Teo
      • Vivienda en Broño, Oleiros
      • Vivienda en Callobre, Oza dos Ríos
      • Vivienda en Sarela de Arriba, Santiago
      • Vivienda en Seixeda, Sada
      • Vivienda en Finca BC, San Martiño do Porto, Cabanas
      • Vivienda en Bemantes, Miño
      • Vivienda en Reboira, Vilarmaior
      • Vivienda en Sionlla, Santiago de Compostela
      • Vivienda en San Isidro, Bergondo
      • Vivienda en A Estrada
      • Vivienda en rúa Hortensias, Oleiros
      • Vivienda en Gandarío, Bergondo
      • Vivienda en Covas, Ferrol
      • Vivienda en Meirás, Valdoviño
      • Vivienda en rúa Pardiñeiro, Oleiros
      • Vivienda en Narón
      • Vivienda en Codesal, O Val, Narón
      • Vivienda unifamiliar en Bouñou, Teo
      • Vivienda en Avda. de Xarío, Miño
      • Vivienda en Viuxe, Betanzos
      • Vivienda en Sésamo, Culleredo
      • Vivienda en Vilachán de Arriba, Negreira
      • Vivienda en Collantres, Coirós
      • Vivienda en Samoedo, Sada
      • Vivienda en Naveira, Cabanas
      • Vivienda en Ombre, Pontedeume
      • Vivienda en O Abelar, Teixeiro, Curtis
    • vivienda rústica
      • Vivienda en Cañás, Carral
      • Vivienda en Veigue, Sada
      • Vivienda en Areas, Ponteareas
      • Vivienda en Cornide, San Sadurniño
      • Vivienda en A Borrallada, Narón
      • Vivienda en Escadas, Oza dos Ríos
      • Vivienda en Coirón, Laracha
      • Vivienda en Maniños, Fene
      • Vivienda en Finca E, San Martiño do Porto, Cabanas
      • Vivienda en Serantes, Ferrol
      • Vivienda en O Val, Narón
      • Vivienda en Dexo, Oleiros
      • Vivienda en Sedes, Narón
      • Vivienda en Punxeiro, Oleiros
      • Vivienda en Ladrido, Ortigueira
    • vivienda en bloque
      • Edificio de 53 Viviendas en Porto do Son
      • Edificio 15 Viviendas en Ribeira
    • arquitectura corporativa
      • Estudio Arquitectura calle Falperra
    • rehabilitación
      • Rehabilitación Vivienda en Porto, A Estrada
      • Rehabilitación Vivienda en Bemantes, Miño
      • Centro tecnológico en Vigo
      • Reforma de piso en Ronda de Nelle
      • Reforma de vivienda en C/ París, A Coruña
      • Reforma oficinas Sedisa
      • Reforma piso en Rúa Dr. Fleming, Carballo
    • locales comerciales
      • Inmobiliaria Habitats, Ferrol
    • edificación complementaria
      • Vivienda en Serantes, Ferrol
      • Edificación auxiliar en Castro, Narón
    • anteproyectos
      • Vivienda en Mariñán
      • Vivienda en Santa Cruz
      • Vivienda en Narón
      • Vivienda en Montrove
      • Vivienda en A Zapateira
      • Vivienda en Altamira
      • Vivienda en Cambre
      • Vivienda en Culleredo
      • Vivienda en Oleiros
      • Vivienda en Narón 2
      • Vivienda en Oza dos Ríos
      • Vivienda en Ames
      • Rehabilitación vivienda en Malpica
  • Diseño
    • Escaleras
    • Cocinas
    • Baños
    • Carpintería de madera
    • Cierres
    • Piscinas
    • Porches
    • Fachadas
    • Iluminación
    • Carpintería exterior
    • Urbanización
    • Instalaciones
  • Blog
  • AD+ d
    • AD+ Documentos
    • AD+ opiniones

Estudio Arquitectura calle Falperra


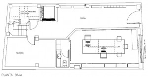
Planta Estudio Arquitectura, calle Falperra

     Carpintería exterior

     Rótulo tirador

     Baño

Estudio AD+ arquitectura
Estudio AD+ arquitectura
Estudio AD+ arquitectura
Estudio AD+ arquitectura
Estudio AD+ arquitectura
Estudio AD+ arquitectura
Estudio AD+ arquitectura
Estudio AD+ arquitectura
Estudio AD+ arquitectura


Síguenos en:

Contacto:
Calle Falperra, nº 74 bajo, 15007 A Coruña
✉ admas@admasarquitectura.com
Tlf: 881923787

AD+ arquitectura in A Coruña, ES en Houzz       AD+ arquitectura en homify

· © 2025 AD+ arquitectura · Funciona con · Diseñado con el Tema Customizr ·