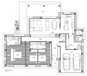
Vivienda en Cornide, San Sadurniño


Proyecto: Noviembre 2007. Inicio obra: Junio 2008. Final de obra: Junio 2010

Constructora: Construcciones Valdoviño S.L.

Ficha