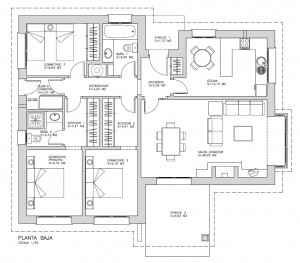
Vivienda en Sedes, Narón Proyecto: Mayo 2007. Inicio obra: Diciembre 2007. Final de obra: Marzo 2009 Constructora: Piedras Rústicas Gallegas S.L.U. Ficha