Rehabilitación Vivienda en Bemantes, Miño


Proyecto: Septiembre 2006. Inicio obra: Febrero 2007. Final de obra: Octubre 2008

Constructora: García y Miños S.L.
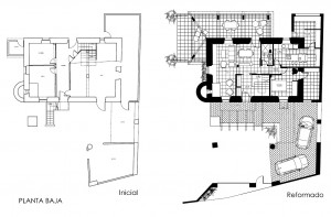
Planta baja vivienda Bemantes. Estado actual y reformado.

 

 

 

 

 

 

 

 

Planta baja vivienda Bemantes. Estado actual y reformado.

 

 

 

 

 

 

 

 

 

 

ARQUITECTOS COLABORADORES: OSCAR RODRIGUEZ RAMOS Y JOSE MANUEL LOPEZ PEREZ