Saltar al contenido
Volver a la página principal
  • Estudio
  • Contacto
  • Proyectos
    • vivienda unifamiliar
      • Vivienda en Chamín, Arteixo
      • Vivienda en Pravio, Cambre
      • Vivienda en Rúa Roibeiras, Mugardos
      • Vivienda en Rúa Fornos, Oleiros
      • Vivienda en As Patiñas, Oleiros
      • Vivienda en Curtis
      • Vivienda en Rúa Aba, Oleiros
      • Vivienda en Bustelo, Teo
      • Vivienda en Broño, Oleiros
      • Vivienda en Callobre, Oza dos Ríos
      • Vivienda en Sarela de Arriba, Santiago
      • Vivienda en Seixeda, Sada
      • Vivienda en Finca BC, San Martiño do Porto, Cabanas
      • Vivienda en Bemantes, Miño
      • Vivienda en Reboira, Vilarmaior
      • Vivienda en Sionlla, Santiago de Compostela
      • Vivienda en San Isidro, Bergondo
      • Vivienda en A Estrada
      • Vivienda en rúa Hortensias, Oleiros
      • Vivienda en Gandarío, Bergondo
      • Vivienda en Covas, Ferrol
      • Vivienda en Meirás, Valdoviño
      • Vivienda en rúa Pardiñeiro, Oleiros
      • Vivienda en Narón
      • Vivienda en Codesal, O Val, Narón
      • Vivienda unifamiliar en Bouñou, Teo
      • Vivienda en Avda. de Xarío, Miño
      • Vivienda en Viuxe, Betanzos
      • Vivienda en Sésamo, Culleredo
      • Vivienda en Vilachán de Arriba, Negreira
      • Vivienda en Collantres, Coirós
      • Vivienda en Samoedo, Sada
      • Vivienda en Naveira, Cabanas
      • Vivienda en Ombre, Pontedeume
      • Vivienda en O Abelar, Teixeiro, Curtis
    • vivienda rústica
      • Vivienda en Cañás, Carral
      • Vivienda en Veigue, Sada
      • Vivienda en Areas, Ponteareas
      • Vivienda en Cornide, San Sadurniño
      • Vivienda en A Borrallada, Narón
      • Vivienda en Escadas, Oza dos Ríos
      • Vivienda en Coirón, Laracha
      • Vivienda en Maniños, Fene
      • Vivienda en Finca E, San Martiño do Porto, Cabanas
      • Vivienda en Serantes, Ferrol
      • Vivienda en O Val, Narón
      • Vivienda en Dexo, Oleiros
      • Vivienda en Sedes, Narón
      • Vivienda en Punxeiro, Oleiros
      • Vivienda en Ladrido, Ortigueira
    • vivienda en bloque
      • Edificio de 53 Viviendas en Porto do Son
      • Edificio 15 Viviendas en Ribeira
    • arquitectura corporativa
      • Estudio Arquitectura calle Falperra
    • rehabilitación
      • Rehabilitación Vivienda en Porto, A Estrada
      • Rehabilitación Vivienda en Bemantes, Miño
      • Centro tecnológico en Vigo
      • Reforma de piso en Ronda de Nelle
      • Reforma de vivienda en C/ París, A Coruña
      • Reforma oficinas Sedisa
      • Reforma piso en Rúa Dr. Fleming, Carballo
    • locales comerciales
      • Inmobiliaria Habitats, Ferrol
    • edificación complementaria
      • Vivienda en Serantes, Ferrol
      • Edificación auxiliar en Castro, Narón
    • anteproyectos
      • Vivienda en Mariñán
      • Vivienda en Santa Cruz
      • Vivienda en Narón
      • Vivienda en Montrove
      • Vivienda en A Zapateira
      • Vivienda en Altamira
      • Vivienda en Cambre
      • Vivienda en Culleredo
      • Vivienda en Oleiros
      • Vivienda en Narón 2
      • Vivienda en Oza dos Ríos
      • Vivienda en Ames
      • Rehabilitación vivienda en Malpica
  • Diseño
    • Escaleras
    • Cocinas
    • Baños
    • Carpintería de madera
    • Cierres
    • Piscinas
    • Porches
    • Fachadas
    • Iluminación
    • Carpintería exterior
    • Urbanización
    • Instalaciones
  • Blog
  • AD+ d
    • AD+ Documentos
    • AD+ opiniones

Rehabilitación vivienda en Malpica


Ficha

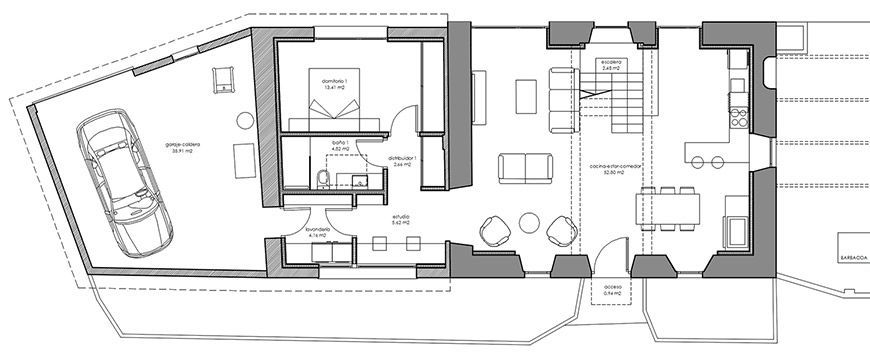
Planta de distribución rehabilitada

Anteproyecto rehabilitación vivienda en Malpica
Anteproyecto rehabilitación vivienda en Malpica
Anteproyecto rehabilitación vivienda en Malpica
Anteproyecto rehabilitación vivienda en Malpica
Anteproyecto rehabilitación vivienda en Malpica
Anteproyecto rehabilitación vivienda en Malpica
Anteproyecto rehabilitación vivienda en Malpica


Síguenos en:

Contacto:
Calle Falperra, nº 74 bajo, 15007 A Coruña
✉ admas@admasarquitectura.com
Tlf: 881923787

AD+ arquitectura in A Coruña, ES en Houzz       AD+ arquitectura en homify

· © 2025 AD+ arquitectura · Funciona con · Diseñado con el Tema Customizr ·